Q8:梁内側の定着長は?

■梁内側の定着長について

梁内側の定着長を設定する場合の考え方について。
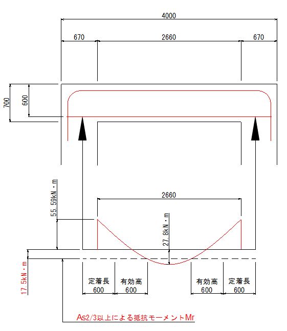
道路土工(ボックスカルバート)指針では、以下のように、鉄筋の1/3の抵抗モーメントを算出し、発生するモーメントの交差位置を求めて、そこから、有効高および定着長を確保したところが定着長の位置となります。

出典)道路土工(カルバート工指針)H21年版 P139

実際に算出してみると、以下の条件では、図の矢印の箇所を超えた範囲まで定着長を伸ばすことが必要となります。